丝瓜官网下载,丝瓜视频IOS在线观看,成人黄色丝瓜视频,丝瓜视频污版下载

當前位置:網站首頁 > 新聞資訊 > 公司動態

丝瓜官网下载氟塑料襯裏層的質量要求

作者:永嘉亞特防腐閥門有限公司  來源:http://www.gondicn.com  更新時間:2016-03-31 0:02:09  點擊次數:
丝瓜官网下载氟塑料襯裏層的質量要求
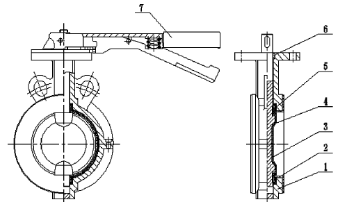
氟塑料襯裏閥門的表麵應當光滑平整、無氣孔、裂紋、夾渣等缺陷。法蘭的翻邊處及其他轉角處應色澤均勻,無泛白現象。並符合GB/T23711.1-2009和GB/T23711.6-2009的規定。氟塑料是高分子材料,有數據表明,氟塑料密度越大滲透係數越小,它們之間有線性關係。氟塑料襯裏層的密度應≥2.16g/cm3,且不允許有雜質存在。
氟塑料的防腐蝕性能,必須達到標準的規定。如不能確定氟塑料的防腐蝕性能,必須按GB/T1763的規定做試驗確認。特別是在更換新牌號氟塑料時要作試驗。用於食品、醫藥、衛生級閥門的襯裏材料,還應無毒、無菌、無雜質清潔衛生的材料,符合GB/T17219的規定。
氟塑料與基體的結合強度,是衡量襯裏質量好壞的標準之一。氟塑料襯裏層應與基體貼合,法蘭麵的襯裏層應襯滿密封麵,並且有扣緊基體的設計結構,襯裏層在負壓0.08MPa條件下,氟塑料襯裏層不出現凸起現象。
 製造工藝
1 氟塑料襯裏前的表麵處理
閥門襯裏前,應將受襯麵毛刺、油汙清除幹淨、修磨平整,盡可能使受襯麵達到GB8923中規定的St2級,還可以采用機械加工的方法,將受襯麵加工出T形槽和螺紋溝槽,增加襯裏層與基體的結合強度,防止襯裏層脫殼。將襯裏麵內部轉角處的棱角銳邊倒鈍,內圓角R>2mm,外圓角R>3mm,減少應力,防止襯裏層被銳角刺破。應盡量滿足襯裏工藝的要求。
2 模壓成型
將需要模壓的蝶閥零件放入模具中,送入加熱爐內加溫,加溫到一定溫度,如將氟塑料加熱到290℃~370℃使其熔融,在7~12MPa壓力下,使熔體充滿模具、壓實,冷至150℃脫模即待到製品。見工藝流程圖。
丝瓜官网下载氟塑料襯裏層的質量要求丝瓜官网下载氟塑料襯裏層的質量要求丝瓜官网下载氟塑料襯裏層的質量要求
丝瓜官网下载,丝瓜视频IOS在线观看,永嘉丝瓜视频污版下载生產廠家永嘉亞特防腐閥門有限公司專業生產丝瓜官网下载,丝瓜视频IOS在线观看,丝瓜官网下载謁誠為您提供優質的產品與服務。
永嘉亞特防腐閥門有限公司
聯係人:吳經理
電話:0577-67161009
手機:13858881433 18966252897
傳真:0577-67160009
Q  Q:936610452
郵箱:wzszsbz@163.com
網址:http://www.gondicn.com
銷售地址:溫州甌北鎮肖橋頭沿河路11號
公司地址:永嘉縣甌北鎮東甌工業區和一村
本文鏈接:http://www.gondicn.com//news/news370.html
上一篇:丝瓜官网下载模壓工藝
下一篇:電動丝瓜官网下载在安裝時的具體要求

相關文章

丝瓜视频污版下载屬於什麽閥門-2020-05-20
丝瓜视频污版下载的作用-2020-05-07
丝瓜视频IOS在线观看都適合什麽樣的環境-2016-04-22
丝瓜视频IOS在线观看主要檢查內容-2016-04-22
丝瓜视频IOS在线观看的優點-2016-04-22
防腐丝瓜视频污版下载應用的注意事項-2016-04-22
丝瓜视频IOS在线观看的密封麵如何研磨?-2015-06-11
簡析氟塑料襯裏蝶閥的基本知識-2021-06-28
丝瓜视频污版下载襯裏材料,丝瓜视频污版下载襯F4與F46區別說明-2016-04-28
丝瓜官网下载及連接方式的分類-2016-04-07
永嘉成人黄色丝瓜视频閥業有限公司鄭重聲明-2019-09-12
丝瓜视频IOS在线观看用途和使用-2016-04-27
丝瓜视频IOS在线观看的密封麵如何堆焊?-2016-04-27
丝瓜视频IOS在线观看的優勢-2016-04-27
丝瓜官网下载安裝使用和注意事項(上)-2016-04-27
關於丝瓜官网下载

公司簡介

聯係丝瓜官网下载

網 址:http://www.gondicn.com郵 箱:wzszsbz@163.com
公司地址:永嘉縣甌北鎮東甌工業區和一村
© 2019 浙江成人黄色丝瓜视频閥業有限公司 版權所有 浙ICP備96504858號
網站地圖