丝瓜官网下载,丝瓜视频IOS在线观看,成人黄色丝瓜视频,丝瓜视频污版下载

當前位置:網站首頁 > 新聞資訊 > 公司動態

丝瓜官网下载故障分析

作者:永嘉亞特防腐閥門有限公司  來源:http://www.gondicn.com  更新時間:2016-04-07 16:07:03  點擊次數:

丝瓜官网下载故障分析

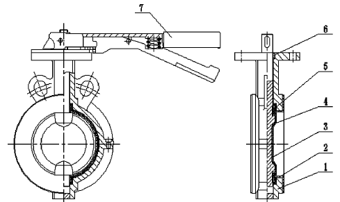
  由於多層軟硬疊式密封圈固定在閥板上,當閥板常開狀態時介質對其密封麵形成正麵衝刷,金屬片夾層中的軟密封帶受衝刷後,直接影響密封性能。 
  丝瓜官网下载使用使用故障分析:      
  一、由於多層軟硬疊式密封圈固定在閥板上,當閥板常開狀態時介質對其密封麵形成正麵衝刷,金屬片夾層中的軟密封帶受衝刷後,直接影響密封性能。
  二、受結構條件的限製該結構不適應做通徑DN200以下閥門,原因是閥板整體結構太厚,流阻大。
  三、因襯膠蝶閥的原理,閥板的密封麵與閥座之間的密封是靠傳動裝置的力矩使閥板壓向閥座。正流狀態時,管夾閥, 丝瓜视频污版下载, 排氣閥 介質壓力越高密封擠壓越緊。當流道介質逆流時隨著介質壓力的增大閥板與閥座之間的單位正壓力小於介質壓強時,密封開始泄漏。
  四,高性能丝瓜官网下载,其特征在於:所述閥座密封圈由軟性T形密封環兩側多層不鏽鋼片組成。
  閥板與閥座的密封麵為斜圓錐結構,在閥板斜圓錐表麵堆焊耐溫、耐蝕合金材料;固定在調節環壓板之間的彈簧與壓板上調節螺栓裝配一起的結構。這種結構有效地補償了軸套與閥體之間的公差帶及閥杆在介質壓力下的彈性變形,解決了閥門在雙向互換的介質輸送過程中存在的密封問題。
  采用軟性T型兩側多層不鏽鋼片組成密封圈,具有金屬硬密封和軟密封的雙重優點,無論在低溫和高溫情況下,均具有零滲漏的密封性能。試驗證明池正流狀態(介質流動方向與蝶板轉動方向相同)時,密封麵的壓力是傳動裝置的力矩和介質壓力對閥板的作用產生的。正向介質壓力增大時閥板斜圓錐表麵與閥座密封麵擠壓越緊,密封效果越好。
  當逆流狀態時,閥板與閥座之間的密封靠驅動裝置的力矩使閥板壓向閥座。隨著反向介質壓力的增大,閥板與閥座之間的單位正壓力小於介質壓強時,膠體磨 乳化機 過濾器 調節環的彈簧在受載後所儲存的變形能補償閥板與閥座密封麵的緊壓力起到自動補償作用。
  因此本實用新型不像現有的技術那樣,在閥板上安裝軟硬多層密封圈,而是直接安裝在閥體上,在壓板和閥座中間增設調節環是十分理想的雙向硬密封方式。
丝瓜官网下载故障分析丝瓜官网下载故障分析
丝瓜官网下载,丝瓜视频IOS在线观看,永嘉丝瓜视频污版下载生產廠家永嘉亞特防腐閥門有限公司專業生產丝瓜官网下载,丝瓜视频IOS在线观看,丝瓜官网下载謁誠為您提供優質的產品與服務。
永嘉亞特防腐閥門有限公司
聯係人:吳經理
電話:0577-67161009
手機:13858881433 18966252897
傳真:0577-67160009
Q  Q:936610452
郵箱:wzszsbz@163.com
網址:http://www.gondicn.com
銷售地址:溫州甌北鎮肖橋頭沿河路11號
公司地址:永嘉縣甌北鎮東甌工業區和一村
本文鏈接:http://www.gondicn.com//news/news373.html
上一篇:丝瓜官网下载及連接方式的分類
下一篇:簡析氟塑料襯裏蝶閥的基本知識

相關文章

丝瓜视频污版下载屬於什麽閥門-2020-05-20
丝瓜视频污版下载的作用-2020-05-07
丝瓜视频IOS在线观看都適合什麽樣的環境-2016-04-22
丝瓜视频IOS在线观看主要檢查內容-2016-04-22
丝瓜视频IOS在线观看的優點-2016-04-22
防腐丝瓜视频污版下载應用的注意事項-2016-04-22
丝瓜视频IOS在线观看的密封麵如何研磨?-2015-06-11
簡析氟塑料襯裏蝶閥的基本知識-2021-06-28
丝瓜视频污版下载襯裏材料,丝瓜视频污版下载襯F4與F46區別說明-2016-04-28
丝瓜官网下载及連接方式的分類-2016-04-07
永嘉成人黄色丝瓜视频閥業有限公司鄭重聲明-2019-09-12
丝瓜视频IOS在线观看用途和使用-2016-04-27
丝瓜视频IOS在线观看的密封麵如何堆焊?-2016-04-27
丝瓜视频IOS在线观看的優勢-2016-04-27
丝瓜官网下载安裝使用和注意事項(上)-2016-04-27
關於丝瓜官网下载

公司簡介

聯係丝瓜官网下载

網 址:http://www.gondicn.com郵 箱:wzszsbz@163.com
公司地址:永嘉縣甌北鎮東甌工業區和一村
© 2019 浙江成人黄色丝瓜视频閥業有限公司 版權所有 浙ICP備96504858號
網站地圖